10
Hill Square
Dundee
Offers Over £59,000
1 Bedrooms
1 Receptions
1 Bathrooms
  • Make Enquiry
  • Floorplan
  • View Home Report
  • Virtual Tour

Full Details

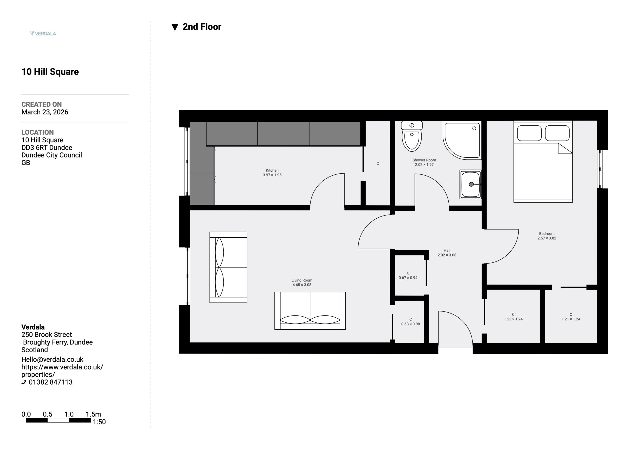
Positioned on the second floor, this one-bedroom apartment offers a straightforward opportunity in a well-established part of Dundee. Hill Square is well placed for day-to-day amenities, local bus links and easy access across the city, making it a practical choice for a first-time buyer, investor or someone looking for a move-made-easy.

Inside, the layout is simple and functional, with a bright front-facing lounge, a separate kitchen, a double bedroom with integrated storage and a shower room. Finishes throughout the home are neutral and have been well cared for. The contemporary finishes across the kitchen ensure the property requires minimal upgrading. Storage has been worked in well, both within the flat and with the added benefit of a shared store on the landing, while gas central heating and secure door entry add to the overall practicality of the property.

INTERESTED?

Like what you see? Get in touch to find out more or arrange a viewing