29
Ballumbie Gardens
Dundee
Offers Over £179,000
2 Bedrooms
1 Receptions
1 Bathrooms
  • Make Enquiry
  • Floorplan
  • View Home Report
  • View EPC
  • Virtual Tour
  • Utilities & More

Full Details

Built by DJ Laing and quietly tucked located In one of Dundee's most consistently popular residential developments, this two-bedroom semi-detached bungalow sits on a generous plot and offers the kind of single-level living that works equally well for first-time buyers and those looking to simplify without compromising on space.

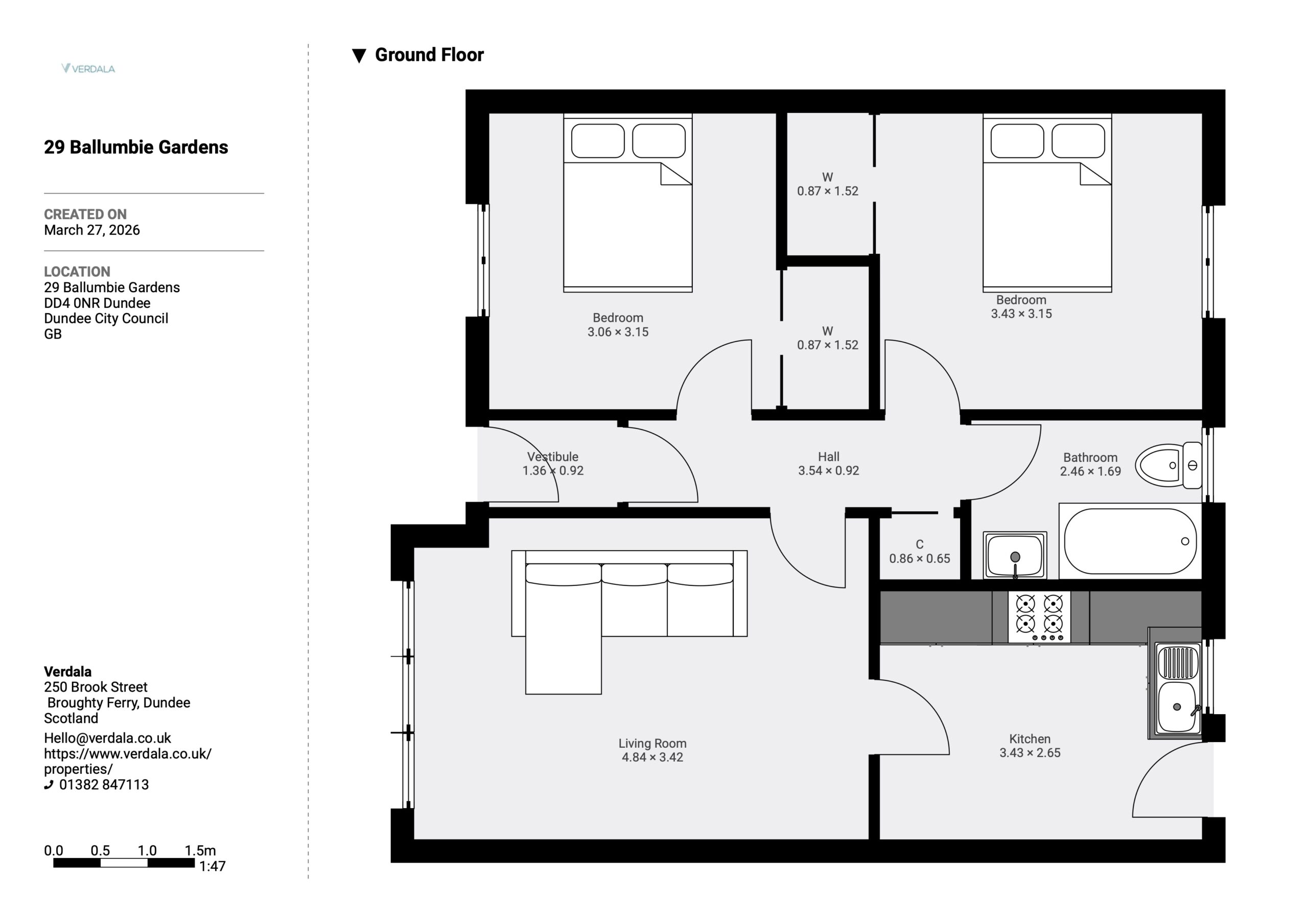
Inside, the layout is bright and well-proportioned. The lounge is a good size with a large front-facing window and a feature wall that gives the room some character. The dining kitchen has good storage, room for a dining table and direct access to the rear garden, a practical flow that makes everyday living easy. Both bedrooms are comfortable doubles with storage, the bathroom has been finished in a clean contemporary style, and a fully floored loft with Ramsay ladder adds genuinely useful additional storage.

Outside is where this one earns its place. A fresh monoblock driveway, separate gravel section and generous parking to the front and side give it real kerb presence, while the rear garden, mainly laid to lawn, nicely enclosed and a good size - offers more breathing room than you'd typically expect at this level.

Easy access to Dundee, Broughty Ferry and local schooling makes Ballumbie a sensible choice for a wide range of buyers. This one's well kept, well positioned and ready to move into.

INTERESTED?

Like what you see? Get in touch to find out more or arrange a viewing

Property Features

  • Generous plot, excellent kerb presence
  • Fully floored loft with ladder
  • Two double bedrooms with storage
  • Fresh monoblock driveway and parking
  • Enclosed rear garden, generous in size
  • Single-level living, move-in ready