5
Dunshelt Road
Broughty Ferry, Dundee
Offers Over £229,000
4 Bedrooms
1 Receptions
2 Bathrooms
  • Make Enquiry
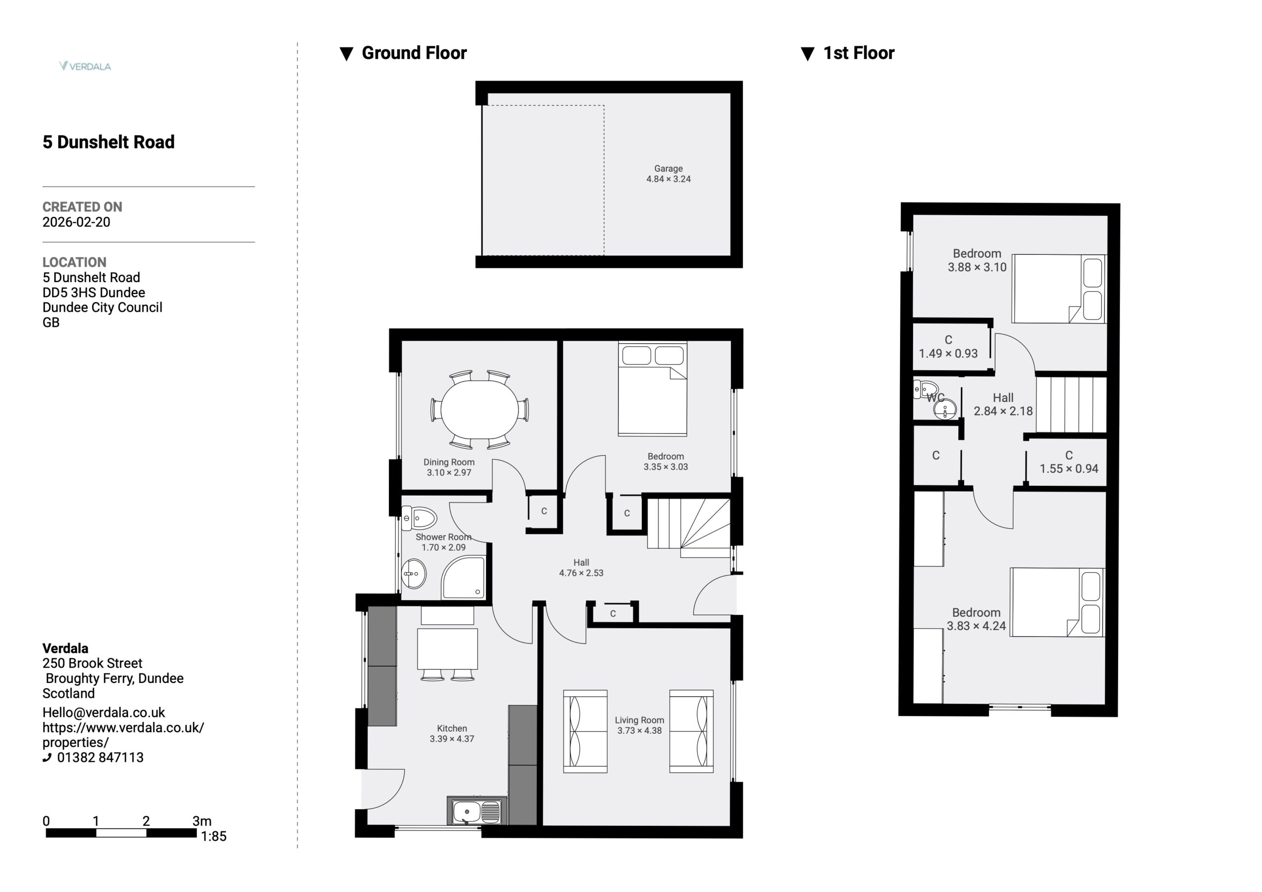
  • Floorplan
  • View Home Report
  • View EPC
  • Virtual Tour
  • Utilities & More

Full Details

Set back on a quiet residential street in ever-popular Broughty Ferry, 5 Dunshelt Road is a welcoming home with a wonderfully practical layout, great natural light and the kind of space that flexes easily with changing needs. From here you’re well placed for everyday amenities in the Ferry, with parks, local shops and well-regarded schooling close by, and straightforward links into Dundee and beyond.

Inside, the house has a warm, comfortable feel from the outset. The front-facing living room is a lovely spot to unwind, centred around a striking brick fireplace, while a second reception room offers versatility as a dining room, snug, home office or ground floor bedroom. The kitchen is bright and generously proportioned, with plenty of worktop space and room for a dining table.

Accommodation is arranged to suit a range of buyers, with a comfortable double bedroom on the ground floor as-well as a smart shower room. Two double bedrooms are on the first floor, complete with excellent built-in storage and a cosy, private feel - perfect as guest rooms, teenager’s retreats or principal bedrooms. There is a practical W/C serving both bedrooms.

Outside, the home continues to impress. A long driveway leads to the rear, providing valuable off-street parking and access to the garage, while the rear garden has been designed for easy upkeep, combining patio seating with gravelled areas - ideal for pot plants, outdoor dining and enjoying the sun with minimal maintenance.

INTERESTED?

Like what you see? Get in touch to find out more or arrange a viewing

Property Features

  • Highly Sought After Residential Setting
  • Generous Accommodation Throughout
  • Well Maintained Front & Rear Garden
  • Private Driveway & Garage
  • Gas Central Heating & Double Glazing