42
Ashludie House Ashludie Hospital Drive
Monifieth, Dundee
Offers Over £215,000
2 Bedrooms
1 Receptions
1 Bathrooms
  • Make Enquiry
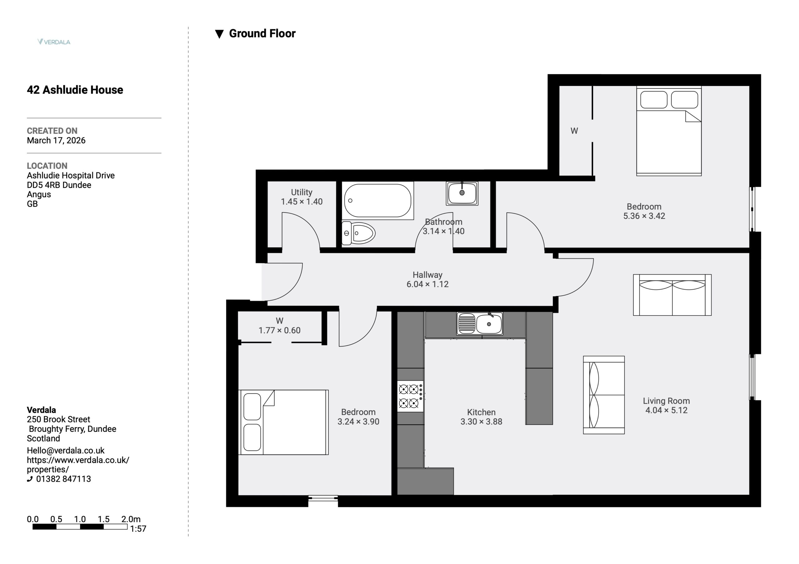
  • Floorplan
  • View EPC
  • Virtual Tour
  • Utilities & More

Full Details

Set within the impressive Ashludie House development, this beautifully presented two-bedroom apartment forms part of a striking period conversion completed around 2018. The building itself makes a wonderful first impression, with its distinctive stone façade and well-kept grounds, while the apartment offers a superb balance of character and contemporary living in the highly sought-after town of Monifieth.

Inside, the home opens into a welcoming hallway leading through to a bright and spacious lounge. Positioned within the upper level of the building, the living space feels both cosy and airy, with soft natural light and neutral décor creating a relaxing setting for everyday living.

Just off the lounge, the modern kitchen has been thoughtfully designed with sleek cabinetry, generous worktop space and a practical peninsula layout that subtly separates the cooking and living areas while maintaining an open, sociable feel.

Both bedrooms are comfortable doubles, offering peaceful retreats at the end of the day. The principal bedroom benefits from built-in wardrobes, while the second bedroom provides excellent flexibility as a guest room, nursery or home office. The bathroom is finished in clean, contemporary tones and features a modern suite with bath and overhead shower.

Externally, residents enjoy beautifully maintained communal grounds surrounding the development, along with convenient parking, adding to the overall sense of space and setting.

Combining the charm of a historic building with the ease of modern living, this attractive apartment offers a wonderful opportunity to enjoy a stylish home within one of Monifieth’s most distinctive developments.

INTERESTED?

Like what you see? Get in touch to find out more or arrange a viewing

Property Features

  • Luxurious Two Bed Apartment
  • Stunning Period Building
  • High Quality Fitted Kitchen
  • Communal Grounds with Residents Parking
  • Gas Central Heating & Double Glazing