20
Tayview Drive
Liff
Fixed Price £439,000
5 Bedrooms
3 Receptions
3 Bathrooms
  • Make Enquiry
  • Floorplan
  • Virtual Tour
  • View Home Report

Property Description

Set within the popular, Angus village of Liff, positioned within a desirable development of luxury villas built by Cala Homes. This detached home boasts a generous layout and offers the ever important open plan living spaces desired by modern families. Tayview Drive is well positioned offering an easy commute to Dundee city centre, Ninewells Hospital and the dual carriageway to Perth and beyond. The West Green development, formally Liff Hospital and its grounds, offers residents access to acres of landscaped garden grounds, private tennis courts and children’s nursery.

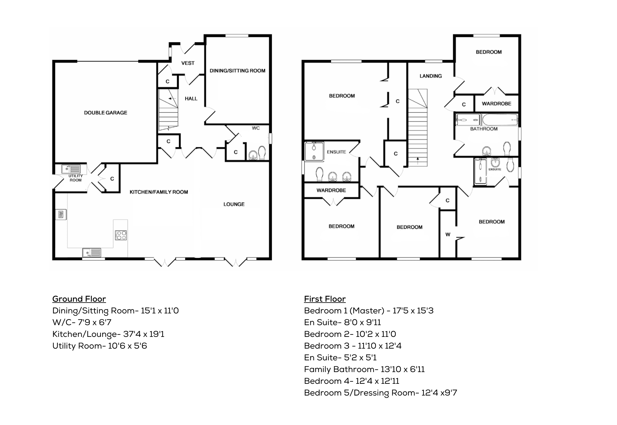
Boasting a generous level of accommodation, set over two floors spanning to approximately 225 square metres the home offers contemporary, high quality finishings throughout. An entrance vestibule leads to the main reception hallway with WC. The impressive, dining kitchen with open plan family room is truly the heart of this home, offering an incredible space for entertaining and a perfect connection to the garden via patio doors. The modern kitchen fittings and a peninsular island are complimented by quality in-built appliances. A practical utility room is accessed from the kitchen and links to the integral garage. An additional, family room is positioned to the front of the home. Ascending to the first floor, the spacious master bedroom features ample fitted storage and a luxurious en-suite shower room. Bedroom two also benefits from an en-suite shower room. There are a three further bedrooms and a beautiful family bathroom with a full suite. There is also an integrated sound system installed throughout the upper level rooms.

The property is set within beautifully maintained garden grounds, landscaped to offer an ideal entertaining space and planed with mature, well stocked borders. The rear gardens, set over two tiers are laid mainly to lawn with seating areas ideally placed to enjoy the sunshine. Driveway parking for multiple vehicles to the front also offers access to the double integral garage with electrically powered door.

INTERESTED?

See something you like? Get in touch with our agents to find out more information about this property and arrange your viewing.

Property Features

  • Beautiful Luxury Detached Villa
  • Access to Private Tennis Courts & Woodland Walks
  • Impressive Open Plan Dining Kitchen and Family Room
  • Additional Sitting Room
  • Double Garage with Power Operated Door
  • Master and Bedroom Two En-Suite