1
Gagiebank
Broughty Ferry, Dundee
Offers Over £259,000
3 Bedrooms
1 Receptions
2 Bathrooms
  • Make Enquiry
  • Floorplan
  • View Home Report
  • Virtual Tour
  • Utilities & More

Full Details

Set on a generous corner plot in the village of Wellbank, 1 Gagie Bank offers a comfortable balance of semi-rural living with the convenience of Broughty Ferry and Monifieth just a short drive away. A traditional stone wall frames the property, giving it a sense of character from the outset.

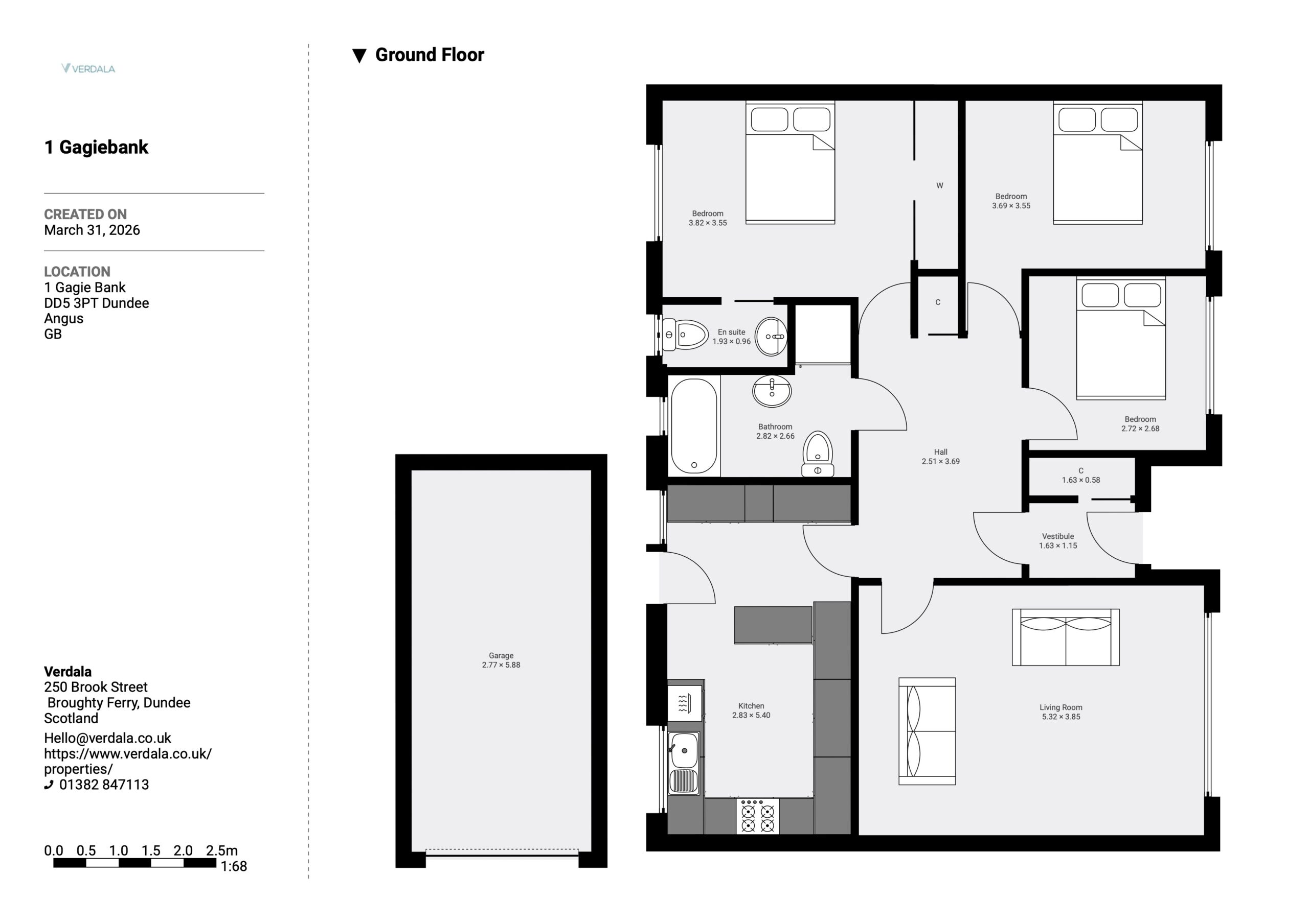
The accommodation is notably spacious, with a bright vestibule opening into a broad, welcoming hallway that sets the tone for the rest of the home. The lounge sits to the front, enjoying views over the garden and centred around a feature fireplace. To the rear, the kitchen is modern and well laid out, with gloss units, integrated appliances and space for everyday dining, along with direct access out to the garden.

There are three well-proportioned double bedrooms, with the principal room benefiting from its own WC. One of the bedrooms is currently used as a dining room, offering flexibility depending on how the space is best suited. The family bathroom is neatly presented, and a useful loft provides additional storage. A recently installed pressurised hot water cylinder ensures strong water pressure throughout.

Outside, the wraparound garden makes the most of the corner position, with a paved patio providing a sunny spot to sit and relax. The layout allows you to follow the sun throughout the day, making the most of the light from morning through to evening. A driveway and garage add to the overall practicality.

A well-maintained bungalow in a quiet village setting, well suited to a range of buyers—from those looking for more space to those seeking to downsize without compromise.

INTERESTED?

Like what you see? Get in touch to find out more or arrange a viewing

Property Features

  • Generous corner plot with wraparound garden
  • Three bedrooms
  • Bright, well-proportioned living spaces
  • Private garden
  • Garage and driveway
  • Peaceful village setting with open outlook